ITM ITM ITL
Ваш город
Казань
+78432072304
+78432072304
info@itm-pro.ru
Каталог
  • Опоры освещения
    Опоры освещения
    • Опоры силовые
    • Опоры несиловые
    • Складывающиеся опоры
    • Граненые опоры
    • Трубчатые опоры
    • Парковые опоры
  • Светильники
    Светильники
  • Светофорные опоры
    Светофорные опоры
    • Светофорные опоры ОГСГ
    • Светофорные опоры ОСФГ
  • Мачты освещения
    Мачты освещения
    • Мачты освещения с мобильной короной: ВМО и МГФ-М
    • Мачты освещения со стационарной короной: ВМОН и МГФ-С
  • Рамные опоры дорожных знаков
    Рамные опоры дорожных знаков
    • Г-образные опоры дорожных знаков
    • П-образные опоры дорожных знаков
    • Т-образные опоры дорожных знаков
  • Закладные детали фундамента
    Закладные детали фундамента
    • Фундаменты ФМ
    • Выносная консоль
    • Консольные фундаменты
  • Кронштейны
    Кронштейны
    • Кронштейны однорожковые
    • Кронштейны двухрожковые
    • Кронштейны трехрожковые
О компании
  • Лицензии
  • Политика
  • Реквизиты
  • Доставка
  • Оплата
  • Миссия
  • Нормативные документы
  • Сотрудничество
  • Дилерам
Услуги
  • Светотехнический расчет
  • Расчет ветровой нагрузки
  • Монтаж опор освещения
  • Автоматизация освещения
Производство
Проекты
Новости
Наличие на складе
Контакты
Ещё
    ITM
    Каталог
    • Опоры освещения
      Опоры освещения
      • Опоры силовые
      • Опоры несиловые
      • Складывающиеся опоры
      • Граненые опоры
      • Трубчатые опоры
      • Парковые опоры
    • Светильники
      Светильники
    • Светофорные опоры
      Светофорные опоры
      • Светофорные опоры ОГСГ
      • Светофорные опоры ОСФГ
    • Мачты освещения
      Мачты освещения
      • Мачты освещения с мобильной короной: ВМО и МГФ-М
      • Мачты освещения со стационарной короной: ВМОН и МГФ-С
    • Рамные опоры дорожных знаков
      Рамные опоры дорожных знаков
      • Г-образные опоры дорожных знаков
      • П-образные опоры дорожных знаков
      • Т-образные опоры дорожных знаков
    • Закладные детали фундамента
      Закладные детали фундамента
      • Фундаменты ФМ
      • Выносная консоль
      • Консольные фундаменты
    • Кронштейны
      Кронштейны
      • Кронштейны однорожковые
      • Кронштейны двухрожковые
      • Кронштейны трехрожковые
    О компании
    • Лицензии
    • Политика
    • Реквизиты
    • Доставка
    • Оплата
    • Миссия
    • Нормативные документы
    • Сотрудничество
    • Дилерам
    Услуги
    • Светотехнический расчет
    • Расчет ветровой нагрузки
    • Монтаж опор освещения
    • Автоматизация освещения
    Производство
    Проекты
    Новости
    Наличие на складе
    Контакты
    Ещё
      ITM ITM ITL
      • Главная
      • Каталог
        • Назад
        • Каталог
        • Опоры освещения
          • Назад
          • Опоры освещения
          • Опоры силовые
          • Опоры несиловые
          • Складывающиеся опоры
          • Граненые опоры
          • Трубчатые опоры
          • Парковые опоры
        • Светильники
        • Светофорные опоры
          • Назад
          • Светофорные опоры
          • Светофорные опоры ОГСГ
          • Светофорные опоры ОСФГ
        • Мачты освещения
          • Назад
          • Мачты освещения
          • Мачты освещения с мобильной короной: ВМО и МГФ-М
          • Мачты освещения со стационарной короной: ВМОН и МГФ-С
        • Рамные опоры дорожных знаков
          • Назад
          • Рамные опоры дорожных знаков
          • Г-образные опоры дорожных знаков
          • П-образные опоры дорожных знаков
          • Т-образные опоры дорожных знаков
        • Закладные детали фундамента
          • Назад
          • Закладные детали фундамента
          • Фундаменты ФМ
          • Выносная консоль
          • Консольные фундаменты
        • Кронштейны
          • Назад
          • Кронштейны
          • Кронштейны однорожковые
          • Кронштейны двухрожковые
          • Кронштейны трехрожковые
      • О компании
        • Назад
        • О компании
        • Лицензии
        • Политика
        • Реквизиты
        • Доставка
        • Оплата
        • Миссия
        • Нормативные документы
        • Сотрудничество
        • Дилерам
      • Услуги
        • Назад
        • Услуги
        • Светотехнический расчет
        • Расчет ветровой нагрузки
        • Монтаж опор освещения
        • Автоматизация освещения
      • Производство
      • Проекты
      • Новости
      • Наличие на складе
      • Контакты
      • Казань
        • Назад
        • Города
        • Екатеринбург
        • Москва
        • Санкт-Петербург
        • Новосибирск
        • Казань
        • Пермь
        • Оренбург
        • Челябинск
        • Самара
        • Владивосток
        • Тюмень
        • Уфа
        • Ханты-Мансийск
        • Воронеж
        • Сургут
        • Омск
        • Астана
        • Минск
      • +78432072304
      Контактная информация
      Казань, Сибирский Tракт, 13, 69
      info@itm-pro.ru

      Севастополь опоры для автодора

      Главная
      -
      Проекты
      -
      г. Севастополь
      -Севастополь опоры для автодора
      Поделиться

      • Севастополь опоры для автодора
      Задача
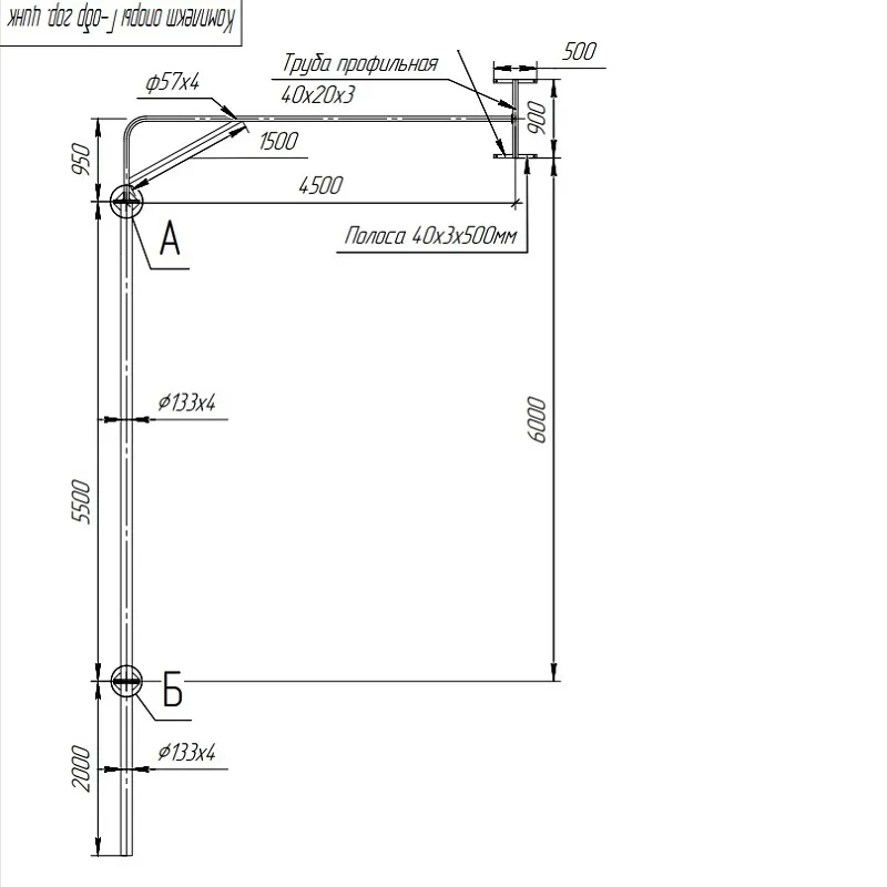
      Модернизация дорожных знаков и метафосфорных опор
      Решение
      Поставка 30 Г-образных опор и 60 светофорных колонок
      Получить консультацию
      Задать вопрос
      Наши специалисты ответят на любой интересующий вопрос по проекту
      Наши специалисты ответят на любой интересующий вопрос по проекту
      Задать вопрос
      Менеджеры компании с радостью ответят на ваши вопросы, произведут расчет стоимости услуг и подготовят коммерческое предложение.
      Получить консультацию

      Назад к списку
      Каталог
      Опоры освещения
      Кронштейны
      Закладные детали фундамента
      Рамные опоры дорожных знаков
      Светофорные опоры
      Мачты связи
      Основное
      Главная
      О компании
      Производство
      Выполненные проекты
      Наличие на складе
      Дополнительно
      Дилерам
      Новости
      Наши контакты
      +78432072304
      +78432072304
      info@itm-pro.ru
      Казань, Сибирский Tракт, 13, 69
      2026 © ООО "Энерго-Арсенал". Все права защищены.